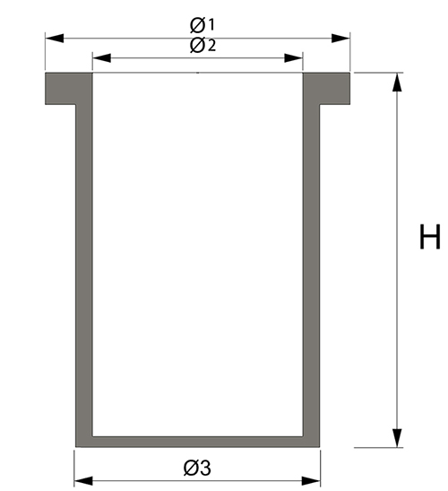
Made from high-purity fused quartz, withstands temperatures up to 1700°C
Excellent thermal shock resistance, resistant to rapid cooling and heating
Suitable for precious metal melting, high-temperature chemical reactions, and crystal growth


Typical Applications:
Compatible with vacuum medium/high frequency gold melting furnaces
Monocrystalline silicon pulling in semiconductor processes
High-temperature material synthesis in laboratories

